GT3/8型钢筋调直切断机工作原理
加入时间:2012/2/17 9:51:46
GT3/8型钢筋调直切断机工作原理
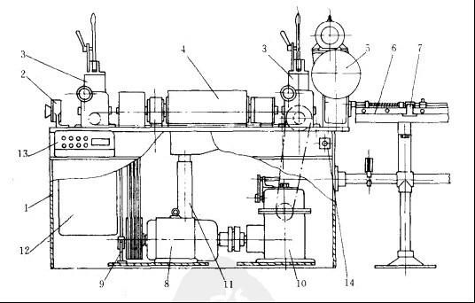
1、构造 常用的GT3/8、GT3/8A型钢筋调直切断机基本结构如下图1、图2所示。
2、工作原理 GT3/8型钢筋调直切断机的传动系统如图3所示。该钢筋调直切断机采用一台功率为5.5KW的电动机驱动,在电动机的轴上有两个皮带轮,其中大皮带轮带动调直筒旋转,调直筒内有5个不在一条轴线上的调直模,每个调直模用螺钉固定,并可调整其位置。调直筒以2900r/min的转速进行旋转,穿过调直筒的曲折钢筋,经反复弯曲变形而被调直,同时也清除了钢筋表面的锈皮。
电动机轴上的小皮带轮,通过甲等皮带减速带动一对锥形齿轮,然后又通过圆柱齿轮带动一对同速反向回转齿轮,使牵引辊转动而牵引钢筋,在大锥形齿轮的轴端上,带动偏心轴旋转,通过连杆使锤头不停地上下运动。在锤头的下方有一个滑动刀台,刀台上有固定切刀。当钢筋调直到预定长度时,钢筋端头触到滑动刀台相连的定尺板,定尺板带动定尺位杆,将滑动刀拉到锤头正下方,锤头锤击刀台的上刀架,便将钢筋切断,切断的钢筋落入承料架内时,由于压缩弹簧的作用,又将滑动刀台顶回到原来位置。
1、构造 常用的GT3/8、GT3/8A型钢筋调直切断机基本结构如下图1、图2所示。
2、工作原理 GT3/8型钢筋调直切断机的传动系统如图3所示。该钢筋调直切断机采用一台功率为5.5KW的电动机驱动,在电动机的轴上有两个皮带轮,其中大皮带轮带动调直筒旋转,调直筒内有5个不在一条轴线上的调直模,每个调直模用螺钉固定,并可调整其位置。调直筒以2900r/min的转速进行旋转,穿过调直筒的曲折钢筋,经反复弯曲变形而被调直,同时也清除了钢筋表面的锈皮。
电动机轴上的小皮带轮,通过甲等皮带减速带动一对锥形齿轮,然后又通过圆柱齿轮带动一对同速反向回转齿轮,使牵引辊转动而牵引钢筋,在大锥形齿轮的轴端上,带动偏心轴旋转,通过连杆使锤头不停地上下运动。在锤头的下方有一个滑动刀台,刀台上有固定切刀。当钢筋调直到预定长度时,钢筋端头触到滑动刀台相连的定尺板,定尺板带动定尺位杆,将滑动刀拉到锤头正下方,锤头锤击刀台的上刀架,便将钢筋切断,切断的钢筋落入承料架内时,由于压缩弹簧的作用,又将滑动刀台顶回到原来位置。
图1 GT3/8型钢筋调直切断机结构
图2 GT3/8A型钢筋调直切断机结构
1-机架;2-导向装置;3-牵引装置;4-调直装置;5-切断装置;
6-承料架;7-定尺装置;8-电动机;9-制动装置;10-变速箱;
11-集尘漏斗;12-电控箱;13-控制盒;14-急停按钮
图3 GT3/8型钢筋调直切断机传动系统
1-电动机;2-皮带轮;3-牵引辊;4-滑动刀台;5-调直钢筋;
6-定尺板;7-定尺拉杆;8-压缩弹簧;9-锤头;10-偏心轴;
11-锥形齿轮;12、13、14-减速齿轮;15-调直筒
GT3/8A型钢筋调直切断机的调直、送料、牵引由一台双轴伸7.5KW电动机驱动,其左侧轴伸通过皮带伟动带动调直筒旋转,调直筒内装有7副调直模,其右侧轴伸经弹性联轴器与变速箱输入轴相接,变速箱借助换挡机构可输出两种转速,通过链条传动带动送料辊、牵引辊做同步旋转,完成钢筋的进料及退料工作。牵引力的大小通过偏心压紧手柄进行调节。切断机构由0.75KW电动机单独驱动,如图4所示,当飞轮轴在皮带传动下高速旋转时,装在飞轮轴中间的偏心连杆机构迫使上锤体做往复运动,当调直后的钢筋通过方刀台定刀内孔进入受料架槽内,钢筋端头触及定尺板并装其向右推动时,则带动拉杆及方刀台一起左移,当装有切断刀片下锤体进入上锤体的锤击区域后,便在上锤体的锤头打击下迅速下移,钢筋遂被切断。钢筋切断后,各移动件在弹簧作用下均迅速复位。通过改变定尺板与上锤体的相对距离,即可变更钢筋的切断长度,为便于调试的事故应急,切断装置还装有人控切断手柄。
图4 GT3/8A型钢筋调直切断机切断机构
上一条:
冷轧带肋钢筋设备的生产工艺有两种